Die geplante gesetzliche Maßnahme verfolgt zwei umweltpolitische Ziele: Einerseits die Energie der "Leichtfraktionen" (Plastik, Papier, Holz, ...) durch Verbrennung zu nutzen und somit fossile Brennstoffe zu sparen, andererseits Problemstoffe von den Deponien fernzuhalten.
Zu diesem Zweck wird der Brennwert von deponierfähigem Material mit 6000 Kilo-Joule pro Kilogramm Trockenmasse begrenzt. Seitens der Entsorgungsbetriebe sind daher zwei Schritte erforderlich: 1. Die Leichtfraktionen des Mülls müssen "abgesiebt", 2. die "Schwerfraktionen" verrottet werden. Bei der Verrottung (genauer: mechanisch-biologische Aufbereitung = mbA, siehe Foto 1) entweichen v.a. Kohlendioxid und Methan. Übrig bleibt eine erdkrustenähnliche, heterogene Masse. Die ist zwar, nach entsprechender Deponierung, relativ unproblematisch in der Weiterverwendung, allerdings ist der Brennwert von so heterogenem, festem Material auch schwer zu bestimmen.
In der ÖNORM S 2118-1 ist geregelt, wie Proben aus diesem Material zu entnehmen und aufzubereiten sind. Allerdings sollen aus kostengründen jeweils nur Gramm-Mengen dieser Proben zur Bestimmung des Brennwerts herangezogen werden. (<link http: www.tuwien.ac.at forschung nachrichten>01) Sind in der Probe nun die "falschen" Müllteile enthalten, ist das Ergebnis zu hoch (problematisch für die Entsorger) bzw. zu niedrig (problematisch für die Umwelt). Exakt mit dieser Thematik beschäftigt sich für den Normungsausschuss und das <link http: www.bmu.gv.at _blank>Umweltministerum das <link http: www.vt.tuwien.ac.at _blank>Institut für Verfahrenstechnik, Brennstofftechnik und Umwelttechnik der TU Wien. <link w="window.open('http://info.zv.tuwien.ac.at/histu-bin/person.pl?id=16265&c=1&l=1',">Gerald Bachmann hat zu diesem Zweck eine Apparatur gebaut, die 10-Kilogramm-Chargen des Mülls zur Brennwertbestimmung verarbeitet. Daneben wurden auch noch Einzelversuche mit Tonnen-Mengen in Wirbelschichtanlagen "gefahren":
Probe | Gramm | 10 Kilogramm | Tonne |
A | 6.210 | 5.980 | 5.450 |
B | 6.070 | 5.840 | 5.360 |
C | 8.000 | 9.010 | 8.320 |
Angaben: Brennwert in Kilojoule pro Kilogramm Trockenmasse |
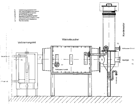
Das Kalorimeter (siehe Foto 2 und Grafik) besteht aus einem 10 bis 20 Kilogramm fassenden Verbrennungsteil mit einer internen Nachverbrennungskammer, einem Rauchgaswärmetauscher und einem Rauchgaskondensator, wo kondensierbare Rauchgasanteile kondensiert und gesammelt werden.
Die Zusammensetzung des Rauchgases (<link http: www.tuwien.ac.at forschung nachrichten>02), die Temperaturen und die Gasmengen werden online gemessen und aufgezeichnet (siehe Foto 3). Eine Massen- und Energiebilanz über das gesamte System liefert den Brennwert des Probenmaterials.
Die Energiebilanz setzt sich zusammen aus Energie ...
- ... aus dem eingesetzten Erdgas,
- ... aus dem Kühlwasser,
- ... aus der Verbrennungsluft,
- ... aus dem Rauchgas,
- ... im Kondensat und
- ... aus den unverbrannten Kohlenstoffmonoxid- und Kohlenwasserstoffmengen.
Eine Wasserbilanz über das gesamte System liefert den Heizwert des eingesetzten Prüfmaterials. Die Bilanz setzt sich zusammen aus Wasser ...
- ... aus der Verbrennung des Erdgases,
- ... aus der Verbrennung des Prüfmaterials,
- ... aus der Verbrennungsluft,
- ... im Kondensat und
- ... im Rauchgas.
Die Kalibration des Systems wird durch die Verwendung eines regelbaren Gasbrenners sichergestellt. Der regelbare Gasbrenner regelt die Verbrennungsteilaustrittstemperatur nach einer vorgegebenen Sollwertkurve. Jede Messung erfordert zwei Testläufe. Die Probenmessung arbeitet mit einer fixen Menge an Testmaterial. Die Blindmessung wird ohne Zugabe von Prüfmaterial durchgeführt. Die Verbrennungsteilaustrittstemperaturverläufe der Probenmessung und der Blindmessung sind durch den Einsatz des regelbaren Gasbrenners annähernd gleich. Dadurch wird ein gleicher Wärmeverlust des Systems bei beiden Messungen sichergestellt. Aus diesem Grund entspricht die Energie aus der Differenz der benötigten Erdgasmengen annähernd der durch den Abbrand des Prüfmaterials freigewordenen Wärmemenge.
Das Messsystem liefert genaue Werte für Brennwerte bis etwa 7.000 Kilojoule pro Kilogramm Trockensubstanz, abhängig vom Verbrennungsverhalten des Prüfbrennstoffes. Diese Möglichkeit zur Überprüfung der Abfallqualität stellt einen wichtigen Beitrag zum Umweltschutz dar.
Fußnoten:
01: Die Brennwert-Bestimmung mit diesen Mengen ist in der DIN 51900 geregelt.




